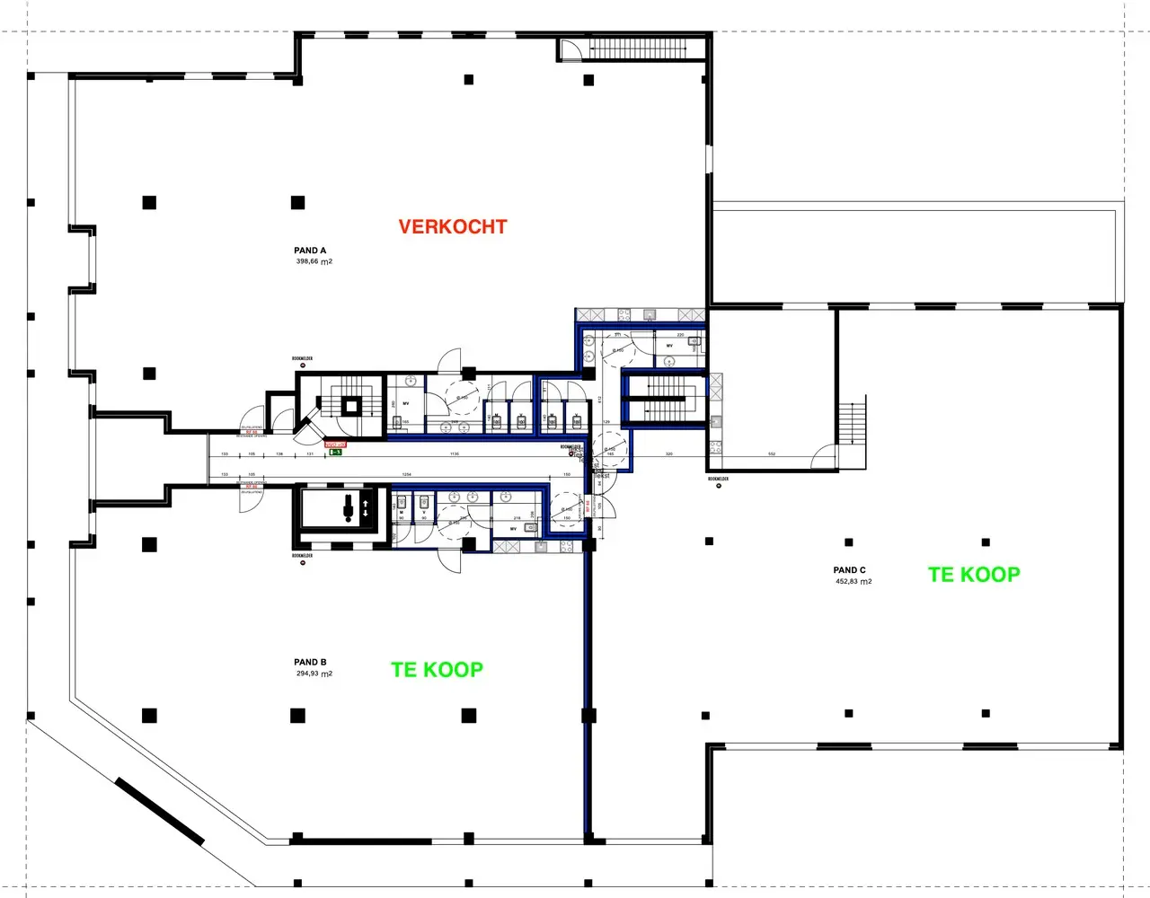
Op zoek naar een strategisch gelegen commerciële ruimte met uitzonderlijke zichtbaarheid? Deze gelijkvloerse commerciële site omvat een ruime en kwalitatieve unit met een oppervlaktes van 453 m², gelegen op een absolute toplocatie: de iconische hoek van de Gouverneur Roppesingel (grote ring van Hasselt) en de Luikersteenweg, zonder twijfel één van de drukste en meest gekende kruispunten van Limburg.
De ligging vlakbij de oprit van de E313 garandeert een uitstekende bereikbaarheid, zowel voor klanten als voor medewerkers. Bovendien wordt aan de overkant van de ring, tegenover deze commerciële ruimtes, het nieuwe ziekenhuis van Hasselt gebouwd, wat deze locatie op middellange termijn een sterke meerwaarde geeft op vlak van passage, visibiliteit en commerciële dynamiek.
De ruimte is flexibel en modulair in te richten en leent zich perfect voor uiteenlopende bestemmingen zoals kantoor, medische of paramedische praktijk, showroom of andere commerciële activiteiten. De grote raampartijen langs de straatzijden zorgen voor maximale visibiliteit en een overvloed aan natuurlijk licht, wat niet alleen uw professionele uitstraling versterkt maar ook het dagelijks werkcomfort aanzienlijk verhoogt.
Ook beschikt het complex over gratis parkeergelegenheid rond het gebouw en, tegen betaling ondergronds, wat het gebruiksgemak verder optimaliseert.
Een uitgelezen opportuniteit voor ondernemers of investeerders die bewust kiezen voor een toplocatie met toekomstpotentieel, waar uw activiteit letterlijk en figuurlijk niet onopgemerkt blijft.
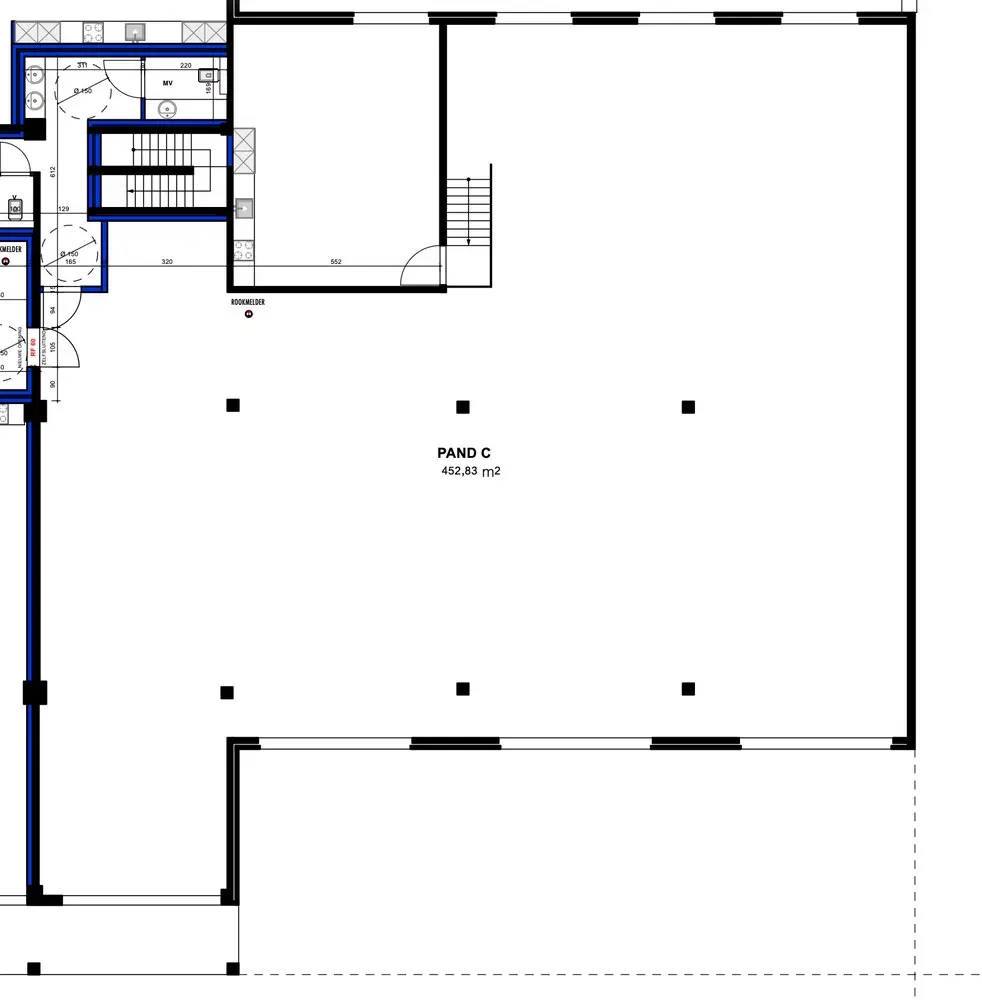
Handelspand C
- adres: Luikersteenweg 232
- oppervlakte: 453 m²
- prijs: € 890.000,-
Deze commerciële ruimte is vernieuwd (2025):
- grote nieuwe raampartijen (zwarte aluminium kozijnen met dubbele beglazing)
- het pand heeft een brede nieuwe inkomdeur
- vloer is geïsoleerd en werd voorzien van een lichte keramische tegelvloer (betonlook / 80 x 80cm)
- sanitaire voorzieningen zijn geïnstalleerd: 3 toiletten waarvan 1 voor mindervaliden
- voorzieningen (watertoevoer en afvoeren) om in elk pand een keuken te installeren
- muren, plafonds worden van een witte verfgrondlaag voorzien
- verwarmingstechnieken middels warmtepomp (lucht-lucht) dienen nog geïnstalleerd te worden (plaats voor buiten-units zijn voorzien)
Het pand is modulair in te richten, zodat het mogelijk is om deze op te splitsen naar verschillende kantoor- of praktijkruimtes:
- extra leidingen (water, afvoeren, elektriciteit) kunnen via het plafond van de kelderverdieping geïnstalleerd worden,
Parkeren:
- ondergrondse commerciële parkeerverdieping voorzien (38 parkeerplaatsen, uitgebaat door een externe partij)
- gratis parkeergelegenheid vóór/rond het gebouw
Unieke kans op topligging in Hasselt – gelijkvloerse commerciële ruimte te koop (453 m²)
€890.000

Details
Bewoonbare oppervlakte453 m²
Perceelsoppervlakte0 m²
Aantal slaapkamersNiet beschikbaar
Aantal badkamersNiet beschikbaar
GaragesNiet beschikbaar
Kadastraal inkomen€ 0
Bouwjaar1.992
Renovatiejaar2.025
Gouverneur Roppesingel 165 ,
3500 Hasselt
3500 Hasselt
Beschikbaar: juli 2025Vanaf het eerste contact tot de afronding staan we naast je. We begeleiden bezichtiging, onderhandeling en administratie, zodat je altijd weet waar je staat en wat de volgende stap is.





















































